Дома под ключ в Тамбове
Отзывы из Яндекс Карт
4.9
79 отзывов
Дополнительные услуги 88%
2 154 оценок
Комплектации 89%
1 535 оценок
Планировки 90%
2 484 оценок
Проекты 93%
2 231 оценок
С
Арсения Спиридонова04/18/2026 г.
Дом 10х15 в два этажа с двумя гаражами — это уже усадьба. Стройка шла с весны до зимы. БрусДома постоянно присылали отчёты по ватсапу. Переживала только за отопление — сделали с запасом, теперь даже в -25 комфортно.
С
Адам Р.07/05/2025 г.
Мы с женой постоянно вносили правки в проект, но команда Брус дома относилась к этому с пониманием и всегда шла навстречу, в итоге получили именно тот дом, который рисовали в своём воображении, спасибо за терпение и гибкость!
Отзывы из Google Карт
4.8
48 отзывов
Дополнительные услуги 88%
2 154 оценок
Комплектации 89%
1 535 оценок
Планировки 90%
2 484 оценок
Проекты 93%
2 231 оценок
С
Сева Олейников05/11/2026 г.
У них много готовых проектов, глаза разбегаются. Помогли выбрать оптимальный по бюджету и по площади участка. В итоге вписались в отведенное место идеально, еще и место для огорода осталось.
С
Борис Лукин02/02/2026 г.
Заказывал проект дома 10х13 с сауной и вторым светом, строили под ключ. В смете потом всплыли допы на материалах тысяч на 40, но я ожидал. Дом красивый, светлый, гости в восторге. Спасибо бригаде, особенно сварщику дяде Васе.
С
Аврора Трифонова04/04/2025 г.
Нашу баню из профилированного бруса построили буквально за месяц — приезжали проверенные временем мастера, которые работали быстро, весело и очень качественно.
Отзывы из 2гис
4.9
33 отзывов
Дополнительные услуги 88%
2 154 оценок
Комплектации 89%
1 535 оценок
Планировки 90%
2 484 оценок
Проекты 93%
2 231 оценок
С
Кира Бычкова03/18/2026 г.
Были опасения насчет каркасной технологии, мол, не так тепло. Но дом для зимнего проживания утеплили по всем правилам, в самый мороз было комфортно.
С
Кузьма Русанов01/10/2026 г.
Взял у БрусДома дом 6х8 с санузлом и вторым светом, эконом-вариант. Ожидал худшего, но сделали нормально, даже розетки все на месте. Косметика внутри подкачала — швы неровные, но я и не платил за отделку вип. Свои деньги отработали.
С
Потап Кузнецов03/01/2025 г.
Спасибо за вашу ответственность и добросовестность. Строители бережно относились к материалам, ничего не разбрасывали и не портили. После себя всё убрали, оставили идеальную чистоту. Баня из профилированного бруса получилась лучше, чем на картинках в каталоге. Очень доволен и обязательно обращусь снова для пристройки веранды.


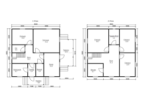
Проект №58 Двухэтажный дом 9х9

каркас из строганой доски
Создайте свой план для этого проекта
и отправьте его нам на расчет в один клик.
Каркасный дом (150 мм) 9х9 Толщина утепления 150 мм 4472300 Заказать
Каркасный дом (200 мм) 9х9 Толщина утепления 200 мм 4782300 Заказать

Пользуйтесь нашим планировщиком для того, чтобы получить личную планировку.

С использованием планировщика вы можете сделать планы, эскизы, схемы, чертежи уникального дома с мансардой, эркером, с нужным числом комнат. Таким образом получится прекрасный проект, который отвечает вашим требованиям.

Вы имеете возможность выбрать вид крыши: четырехскатная, двускатная и вальмовая. Двухскатная считается самой популярной в небольших постройках.

Самые популярные размеры сегодня: мини - до 50 квадратных метров (в основном, 1 этажные); компактные - от 70 до 100 м2 (обычно 2х этажные); большие дома - начиная от 150 кв. М и более.

Строим дуплексы - большие каркасные постройки с 2-мя входами на 2 семьи. Подобные дома строятся сразу для двух хозяев и разделяются на две части, для каждой половины - свой вход.


Наши работы

Перейти в галерею


Комплектация

Площадь застройки: 166.6 м2
Длина: 9 м
Ширина: 9 м
Общая площадь: м2
Исполнение Под ключ (с отделкой)
Фундамент Свайно-винтовой или ж/б сваи (рассчитываются отдельно).
Гидроизоляция фундамента Рубероид в два слоя.
Основание (обвязка) Из обрезного бруса 150х150 мм. 150х200 мм. согласно выбранной толщине утепления. Торцевая доска строганая 45х145/45х195+/-5 мм. согласно выбранной толщине утепления. Обработка антисептиком.
Цокольное перекрытие Строганая доска камерной сушки 45х145/45х195+/-5 мм. с шагом 590 мм. Обработка антисептиком.
Пол черновой Обрезная доска камерной сушки 20х100 мм.
Влаго-ветрозащита чернового пола Мембрана Ондутис А100.
Внешние стены Стойки каркаса из строганой доски камерной сушки 45х145/45х195+/-5 мм. с шагом 590 мм. Верхняя двойная и нижняя обвязки из строганой доски камерной сушки 45х145/45х195+/-5 мм. Разгрузочный ригель из строганой доски 45х145+/-5 мм. Укосины из строганой доски 20х95 мм.
Перегородки Стойки каркаса из строганой доски камерной сушки 45х95+/-5 мм. с шагом 590 мм. Верхняя двойная и нижняя обвязки из строганой доски 45х95+/-5 мм. Разгрузочный ригель из строганой доски камерной сушки 45х145+/-5 мм. Укосины из строганой доски камерной сушки 20х95 мм.
Сборка каркаса На гвозди.
Высота от пола до потолка Дом одноэтажный: 2,5 м. Дом с мансардой: 1-ый этаж- 2,5 м.
2-ой этаж (мансарда)- 2,3 м.
Дом в полтора и два этажа:
1-ый этаж 2,5 м.
2-ой этаж 2,4 м. в полутораэтажном доме
2,5 м. в двухэтажном доме.
Внешняя отделка стен Имитация бруса камерной сушки, сорт АВ, толщиной 17 мм. Монтаж через строганый брусок камерной сушки 45х45+/-5 мм. (вентилируемый фасад). Влаго-ветрозащитная мембрана- Ондутис А100.
Внутренняя отделка стен, перегородок Евровагонка камерной сушки, сорт АВ, толщиной 12,5 мм. по строганой рейке 20х40+/-5 мм. либо ГКЛ 12,5 мм.
Отделка потолка Евровагонка камерной сушки, сорт АВ толщиной, 12,5 мм. по строганой рейке 20х40+/-5 мм. либо ГКЛ 12,5 мм.
Пол чистовой Шпунтованная доска камерной сушки толщиной 35-36 мм. сорт АВ. по строганой рейке 20х40+/-5 мм. либо шпунтованная ДСП 16 мм. по разряженной обрешётке из строганой доски камерной сушки 20х95+/-5 мм.
Утепление (пол, потолок) Минеральная вата Knauf 150/200 мм. согласно выбранной толщине утепления.
Утепление стен Плитный утеплитель Rockwool, толщиной 150/200 мм. согласно выбранной толщине утепления.
Звукоизоляция перегородок Плитный утеплитель Rockwool, толщиной 100 мм.
Пароизоляция (стены, перегородки, пол, потолок) Плёнка Ондутис R70. Дополнительная герметизация нахлёстов/примыканий пароизоляционной плёнки клейкой лентой Delta.
Окна Двухкамерные стеклопакеты ПВХ белого цвета, профиль 60 мм. В комплекте: отливы, подоконники, москитные сетки.
Двери Входная- металлическая, утеплённая (Россия). Межкомнатные- филёнчатые.
Наличники на окна и двери Наличник деревянный, строганый, камерной сушки 70-90 мм. с двух сторон.
Лестница (при наличии второго этажа) Деревянная, одно или двухмаршевая. Перила- заводские резные, балясины- заводские точеные, устанавливаются стартовые точёные столбы. Ступени 40х200 мм. Тетива лестницы- 90х140 мм.
Крыша Двускатная, ломаная или вальмовая в соответствии с проектом.
Стропильная система Выполнена из строганой доски камерной сушки 45х145/45х195+/-5 мм. Шаг установки стропил 590 мм.
Обрешётка Выполняется из строганой доски камерной сушки толщиной 20х95+/-5 мм. Шаг крепления обрешетки 350 мм. Контробрешётка выполняется из строганого бруска камерной сушки 45х45+/-5 мм. Крепится по стропилам (вентиляционный зазор).
Подкровельная мембрана Ондутис А100
Кровельное покрытие (на выбор) Металлочерепица 0,45 мм. Цвет на выбор.
Фронтоны (при наличии) Каркас из строганой доски камерной сушки 45х145/45х195+/-5 мм. Обшиваются имитацией бруса камерной сушки, сорт АВ, толщиной 17 мм. Монтаж через строганый брусок камерной сушки 45х45+/-5 мм. (вентилируемый фасад). Влаго-ветрозащитная мембрана- Ондутис А100. Монтаж вентиляционных решёток.
Свесы крыши Ширина 400 мм. Подшиваются вагонкой камерной сушки, сорт АВ.
Терраса/балкон (при наличии) Устанавливаются опорные столбы из строганного бруса камерной сушки 140х140 мм.
Отделка потолка террасы/балкона Евровагонка камерной сушки толщиной 12,5 мм. сорт АВ.
Пол террасы/балкона Шпунтованная доска камерной сушки толщиной 35-36 мм. сорт АВ.
Ограждение террасы/балкона Перила- строганая доска. Балясины- точеные, фигурные. Либо ограждение в скандинавском стиле. Устанавливаются ступени у входа.
Допуск на геометрические параметры Составляет +/- 50 мм по длине с каждой стороны.
Допускается стыковка имитации бруса, вагонки и половой доски По всему периметру стен дома (если ширина и длина дома более 6,0 метров). Вагонки и доски пола в каждой отдельной комнате.
Допуски по имитации бруса, вагонке, доске +/- 5 мм.
В стоимость включена Доставка комплекта материала в радиусе 500 км. от г. Пестова Новгородской области и сборка дома на вашем участке.
Гарантия 5 лет.
Бытовка строительная 2,0х3,0 м. каркасно-щитовая. Стоимость 23000 руб. Остаётся на участке Заказчика.
Туалет 1,0х1,0 м. каркасно-щитовой. Стоимость 12000 руб. Остаётся на участке Заказчика.
Генератор Стоимость аренды на весь срок строительства 15000 руб. ГСМ за счёт Заказчика.

Сооружение домов производится в нескольких вариантах: под ключ и под усадку, когда дом отстаивается некоторое время.

В зимнее время года лучше строить дома в холодную погоду, чтобы каркас не промок, в летний период - не в дождливую.

Оптимальными для сада или дачи являются экономичные домики на винтовых сваях, на нашем сайте вы увидите одноэтажные и полуторатажные варианты домов.

При условии, что дом будет строиться для проживания круглый год, предлагаем теплые дома на плитном и ленточном фундаменте.

Имеется два вида утепления: 200 мм и 150 мм. Каркасные дома с толщиной стен 200 миллиметров получаются теплее, но стоят дороже.

Дополнительные услуги


Дачный каркасный дом 9х9 м. с занимает на участке кв.м.. В двухэтажном доме есть все для постоянного проживания: светлая обеденная зона, комнаты для сна и отдыха, ванная.

Каркас стен выполнен из обрезной доски, проёмы заполнены минеральным утеплителем. Этот трехслойный «пирог» обеспечивает эффективную теплоизоляцию и здоровый микроклимат в доме. Полы и потолочное перекрытие также теплоизолированы рулонным утеплителем типа URSA или ISOVER и имеют парогидроизоляцию. Крыша двускатная, из ондулина.

Чистовая поверхность пола настелена шпунтовой строганой доской, потолок подшит вагонкой. Оконные проемы имеют двойное остекление. Площадь остекления достаточно велика, в здании достаточное естественное освещение. Двери филенчатые, из сухого пиломатериала, что обеспечивает отсутствие перекосов и щелей, чреватых сквозняками.

Наша компания поставляет комплекты зданий как для самостоятельной сборки, так и выполняет строительство под ключ: от фундаментных работ до финишной отделки и подводке коммуникаций. Закажите строительство каркасного дома по любому проекту, включая проект 58, у нас!


Популярные проекты


Каркасные дома 4х5 Каркасные дома 6х5 Каркасные дома 6х8
хит продаж
Тип:
Общая площадь: 2
1902800
от 1812300
хит продаж
Тип: с балконом, с большой террасой
Общая площадь: 2
2721800
от 2592300
хит продаж
Тип: с большой террасой
Общая площадь: 2
4044800
от 3852300
Дома из бруса

Заказать или задать вопрос



Заказать или задать вопрос

Заказать звонок