Дома под ключ в Тамбове
Отзывы из Яндекс Карт
4.9
109 отзывов
Дополнительные услуги 88%
2 154 оценок
Комплектации 89%
1 535 оценок
Планировки 90%
2 484 оценок
Проекты 93%
2 231 оценок
С
Радослав Афанасьев08/05/2025 г.
Цена и качество полностью соответствуют друг другу, даже скорее качество превышает ожидания за эти деньги. Никаких скрытых платежей, все прозрачно и честно, как и договаривались вначале. Редкость в наше время.
Отзывы из Google Карт
4.8
66 отзывов
Дополнительные услуги 88%
2 154 оценок
Комплектации 89%
1 535 оценок
Планировки 90%
2 484 оценок
Проекты 93%
2 231 оценок
С
Алина Б.04/13/2026 г.
В принципе, нормальная компания. Заказывали каркасный дачный дом 5х6 для свекрови. Сделали быстро, дёшево, но качество средней руки — где-то утеплитель неровно лежит, сквозит немного. Свекровь не привередливая, довольна. Мы просили доработать — приехали,
С
Шанель Кочергина02/01/2026 г.
Баню 6х6 с террасой и бассейном поставили, только бассейн пришлось самим гидроизолировать — они сделали чашу, но сказали, что это не входит в их работу. В общем, читайте договор внимательнее.
С
Ренат Цветков01/26/2026 г.
Выбрал проект с террасой и навесом для машины. Построили быстро, но покраску фасада немного сэкономили, пришлось через год обновлять. В целом, соотношение цены и качества меня устроило.
С
Антон Кононов02/16/2025 г.
Я заказал строительство дома в середине зимы, и конечно переживал за возможные сложности, но бригада работала чётко и слаженно несмотря на морозы, и к весне я уже получил полностью готовый тёплый контур.
Отзывы из 2гис
4.9
33 отзывов
Дополнительные услуги 88%
2 154 оценок
Комплектации 89%
1 535 оценок
Планировки 90%
2 484 оценок
Проекты 93%
2 231 оценок
С
Лилия03/13/2026 г.
Наверное, как и многие, боялась, что обманут с материалами. Заказала дом 8х12 из профилированного бруса — приезжала на стройку с линейкой, замеряла сечение. Всё совпало с договором, даже где-то на пару миллиметров толще.
С
Веда Ельцина04/02/2025 г.
Каждый мой визит на стройплощадку вызывал только положительные эмоции — чистота, порядок и видимый прогресс на каждом этапе являются лучшим доказательством высочайшей корпоративной культуры.


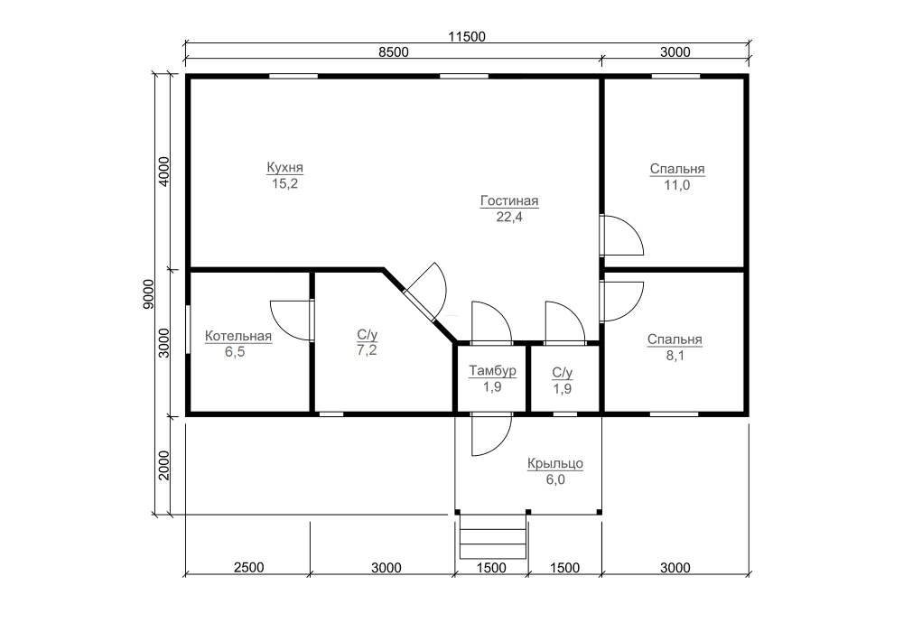
Проект №91 Дом 11,5х7

брус камерной сушки
Под ключ (с отделкой) 7х11,5 Профилированный 140х140 мм 2292300 Заказать
Под ключ (с отделкой) 7х11,5 Профилированный 190х140 мм 2522300 Заказать
Под усадку (без отделки) 7х11,5 Cруб дома 140х140 мм 1662300 Заказать
Под усадку (без отделки) 7х11,5 Cруб дома 190х140 мм 1922300 Заказать


Комплектация

Площадь застройки: 86.5 м2
Длина: 11 м
Ширина: 7 м
Общая площадь: 74.5 м2
Под ключ (с отделкой) Под усадку (без отделки)
Фундамент Свайно-винтовой или ж/б сваи (рассчитываются отдельно).
Гидроизоляция фундамента Рубероид в два слоя.
Основание (обвязка) Из обрезного бруса (100х150 мм. 150х150 мм. 150х200 мм. согласно выбранному сечению бруса). Обработка антисептиком.
Количество рядов основания 2 2
Цокольное перекрытие Обрезной брус камерной сушки 100х150/50х200 мм. с шагом 600 мм. Обработка антисептиком. Обрезной брус естественной влажности 100х150/50х200 мм. с шагом 600 мм. Обработка антисептиком.
Пол черновой Обрезная доска камерной сушки 20х100 мм. Обрезная доска естественной влажности 20х100 мм.
Внешние стены Профилированный брус камерной сушки, сечением 90х140/140х140/190х140 мм. по выбранной комплектации. Два вида профиля: 
1. С двух сторон, прямой со снятой фаской. 2. Снаружи под «блок- хаус», внутри прямой.
Высота сруба: Сруб одноэтажный- 18 венцов
Сруб с мансардой- 18 венцов
Сруб в 1,5 этажа- 18 венцов, далее каркас с внешней отделкой имитацией бруса.
Сруб в 2 этажа- 37 венцов
Профилированный брус естественной влажности, сечением 90х140/140х140/190х140 мм. по выбранной комплектации. Два вида профиля: 
1. С двух сторон, прямой со снятой фаской. 2. Снаружи под «блок- хаус», внутри прямой.
Высота сруба: Сруб одноэтажный- 18 венцов
Сруб с мансардой- 18 венцов
Сруб в 1,5 этажа- 18 венцов, далее каркас с внешней отделкой имитацией бруса.
Сруб в 2 этажа- 37 венцов
Межвенцовый утеплитель Джут (льноджутовое полотно). Джут (льноджутовое полотно).
Перегородки 1-го этажа Профилированный брус камерной сушки, сечением 90х140 мм. Профилированный брус естественной влажности, сечением 90х140 мм.
Перегородки 2-го этажа Каркасные: доска камерной сушки 40х100 мм, обшитые евровагонкой хвойных пород, камерной сушки, толщиной 12,5 мм. сорт «АВ» (дома с мансардой и в 1,5 этажа). Брусовые: профилированный брус камерной сушки, сечением 90х140 мм. (дома двухэтажные). Каркасные: доска естественной влажности 40х100 мм. (дома с мансардой и в 1,5 этажа). Брусовые: профилированный брус естественной влажности, сечением 90х140 мм. (дома двухэтажные).
Сборка сруба Берёзовый нагель. Берёзовый нагель.
Соединение углов сруба «Тёплый угол» (коренной шип). «Тёплый угол» (коренной шип).
Высота от пола до потолка Сруб одноэтажный: 2,4 м. (18 венцов) Сруб с мансардой: 1-ый этаж- 2,4 м. (18 венцов)
2-ой этаж (мансарда)- 2,3 м.
Сруб в полтора и два этажа:
1-ый этаж 2,4 м ±4 см. (18 венцов)
2-ой этаж 2,4 м ±4 см. каркасные аттиковые стены (боковые) высотой 1,5 м. в полутораэтажном доме
2,4 м ±4 см (поднят брусом на 18 венцов) в двухэтажном доме.
Сруб одноэтажный: 2,5 м. (18 венцов) Сруб с мансардой: 1-ый этаж- 2,5 м. (18 венцов)
2-ой этаж (мансарда)- 2,4 м.
Сруб в полтора и два этажа:
1-ый этаж 2,5 м ±4 см. (18 венцов)
2-ой этаж 2,5 м ±4 см. каркасные аттиковые стены (боковые) высотой 1,5 м. в полутораэтажном доме
2,5 м ±4 см (поднят брусом на 18 венцов) в двухэтажном доме.
Утепление (пол, потолок, мансарда) Минеральная вата Knauf 150 мм. Отсутствует.
Пароизоляция (пол, потолок, мансарда) Ондутис R70. Отсутствует.
Пол чистовой Шпунтованная доска камерной сушки толщиной 36 мм. сорт АВ. по рейке 20х40 мм. либо шпунтованная ДСП 16 мм. по разряженной обрешётке из обрезной доски камерной сушки 20х100 мм. Отсутствует.
Потолки Евровагонка камерной сушки толщиной 12,5 мм. сорт АВ. Отсутствует.
Окна Деревянные, двойного остекления. Отсутствуют.
Двери Входная- металлическая, утеплённая (Россия). Межкомнатные- филёнчатые. Отсутствуют.
Наличники на окна и двери Наличник деревянный, строганый, камерной сушки 70-90 мм. Отсутствует.
Шиповка оконных и дверных проёмов (ройки) Да. Отсутствует.
Лестница (при наличии второго этажа) Деревянная, одно или двухмаршевая. Перила- заводские резные, балясины- заводские точеные, устанавливаются стартовые точёные столбы. Ступени 40х200 мм. Тетива лестницы- 90х140 мм. Отсутствует.
Крыша Двускатная, ломаная или вальмовая в соответствии с проектом. Двускатная, ломаная или вальмовая в соответствии с проектом.
Стропильная система Выполнена из обрезной доски камерной сушки 40х150 мм. Шаг установки стропильных ног 600 мм. Выполнена из обрезной доски естественной влажности 40х150 мм. Шаг установки стропильных ног 600 мм.
Обрешётка Выполняется из обрезной доски камерной сушки толщиной 20-22 мм. Шаг крепления обрешетки 300 мм. Контробрешётка выполняется из бруска камерной сушки 40х50 мм. Крепится по стропильным ногам (вентиляционный зазор). Выполняется из обрезной доски естественной влажности толщиной 20-22 мм. Шаг крепления обрешетки 300 мм. Контробрешётка выполняется из бруска естественной влажности 40х50 мм. Крепится по стропильным ногам (вентиляционный зазор).
Подкровельная мембрана Ондутис А100 Ондутис А100
Кровельное покрытие (на выбор) Ондулин, Черепица Ондулин. Ондулин, Черепица Ондулин.
Фронтоны (при наличии) Каркас из обрезной доски камерной сушки 40х150 мм. Обшиваются вагонкой камерной сушки толщиной 16 мм. сорт АВ по контррейке 20х40 мм. (вентиляционный зазор). Влаго-ветрозащита Ондутис А100. Монтаж вентиляционных решёток. Каркас из обрезной доски естественной влажности 40х150 мм. Обшиваются вагонкой камерной сушки толщиной 16 мм. сорт АВ по контррейке 20х40 мм. (вентиляционный зазор). Влаго-ветрозащита Ондутис А100. Монтаж вентиляционных решёток.
Свесы крыши Ширина 400 мм. Подшиваются вагонкой камерной сушки, сорт АВ. Ширина 400 мм. Подшиваются вагонкой камерной сушки, сорт АВ.
Терраса/балкон (при наличии) Устанавливаются опорные столбы из строганного бруса камерной сушки 140х140 мм. с компенсационными болтами под усадку. Устанавливаются опорные столбы из строганного бруса естественной влажности 140х140 мм. с компенсационными болтами под усадку.
Отделка потолка террасы/балкона Евровагонка камерной сушки толщиной 12,5 мм. сорт АВ. Отсутствует.
Пол террасы/балкона Шпунтованная доска камерной сушки толщиной 36 мм. сорт АВ. Отсутствует.
Ограждение террасы/балкона Перила- строганая доска. Балясины- точеные, фигурные. Либо ограждение в скандинавском стиле. Устанавливаются ступени у входа. Отсутствует.
Допуск на геометрические параметры сруба Составляет +/- 50 мм по длине с каждой стороны. Составляет +/- 50 мм по длине с каждой стороны.
Допускается стыковка бруса, вагонки и половой доски По всему периметру стен дома (если ширина и длина дома более 6,0 метров). Вагонки и доски пола в каждой отдельной комнате. По всему периметру стен дома (если ширина и длина дома более 6,0 метров).
Допуски по брусу, доске +/- 5 мм. +/- 5 мм.
В стоимость включена Доставка комплекта материала в радиусе 500 км. от г. Пестова Новгородской области и сборка дома на вашем участке. Доставка комплекта материала в радиусе 500 км. от г. Пестова Новгородской области и сборка дома на вашем участке.
Гарантия 5 лет. 2 года.
Бытовка строительная 2,0х3,0 м. каркасно-щитовая. Стоимость 23000 руб. Остаётся на участке Заказчика. Стоимость 23000 руб. Остаётся на участке Заказчика.
Туалет 1,0х1,0 м. каркасно-щитовой. Стоимость 12000 руб. Остаётся на участке Заказчика. Стоимость 12000 руб. Остаётся на участке Заказчика.
Генератор Стоимость аренды на весь срок строительства 10000 руб. ГСМ за счёт Заказчика. Стоимость аренды на весь срок строительства 10000 руб. ГСМ за счёт Заказчика.

Строительство деревянных домов производится в двух видах: под усадку, когда сруб отстаивается в течение определенного времени и под ключ.

В период холодов желательно строить дома из зимнего леса, в летнее время - из бруса камерной сушки.

Подходящими для сада или дачи стали дома на винтовых сваях, у нас присутствуют одноэтажные и полуторатажные дома.

Для постоянного проживания, готовы предложить теплые и надежные одноэтажные и двухэтажные коттеджи и дома на ленточном и плитном фундаменте.

Мы можем предложить несколько видов профбруса: 140х140 мм и 190х140 мм. Дома из вертикального бруса строим с применением бруса 140х190 мм.

Дополнительные услуги


Этот одноэтажный дом c подойдет и для сезонного отдыха, и для постоянного проживания.

Дома из профилированного бруса от нашей компании отличаются устойчивостью к снеговой нагрузке и влаге. Покрытие двускатной – ондулин, выбор цвета предоставляется заказчику: коричневый, зеленый и красный. Стропильная система изготовлена из пиломатериалов сечением 40х100 мм, с поперечной обрешеткой из доски-дюймовки.

Стены из профилированного бруса с льноджутовой теплоизоляцией между венцами. Здание изготавливается в двух вариантах – из брусьев сечением 90х140 мм и 140х140 мм. Второй вариант с усиленной теплоизоляцией обеспечивает комфорт проживания в зимнее время. 

Общая площадь помещений – 74.5 кв.м., размер дома – 7х11,5 м.. Зимние двойные окна обеспечивают естественное освещение и проветривание комнат.

«Дача из бруса» не только поставит домокомплект по проекту 91 , но и произведет его установку – от устройства фундамента до финишной отделки.


Популярные проекты

хит продаж брус камерной сушки
Тип:
Общая площадь: 106.92
1535300
от 1462300
хит продаж брус камерной сушки
Тип: с балконом, с маленькой террасой
Общая площадь: 442
926300
от 882300

Заказать или задать вопрос



Заказать или задать вопрос

Заказать звонок